1、在网上下载一个CAD软件,首先制作一张封面,打上某某小区几栋几号,自己的门牌号,方便物业审核好知道是谁家。

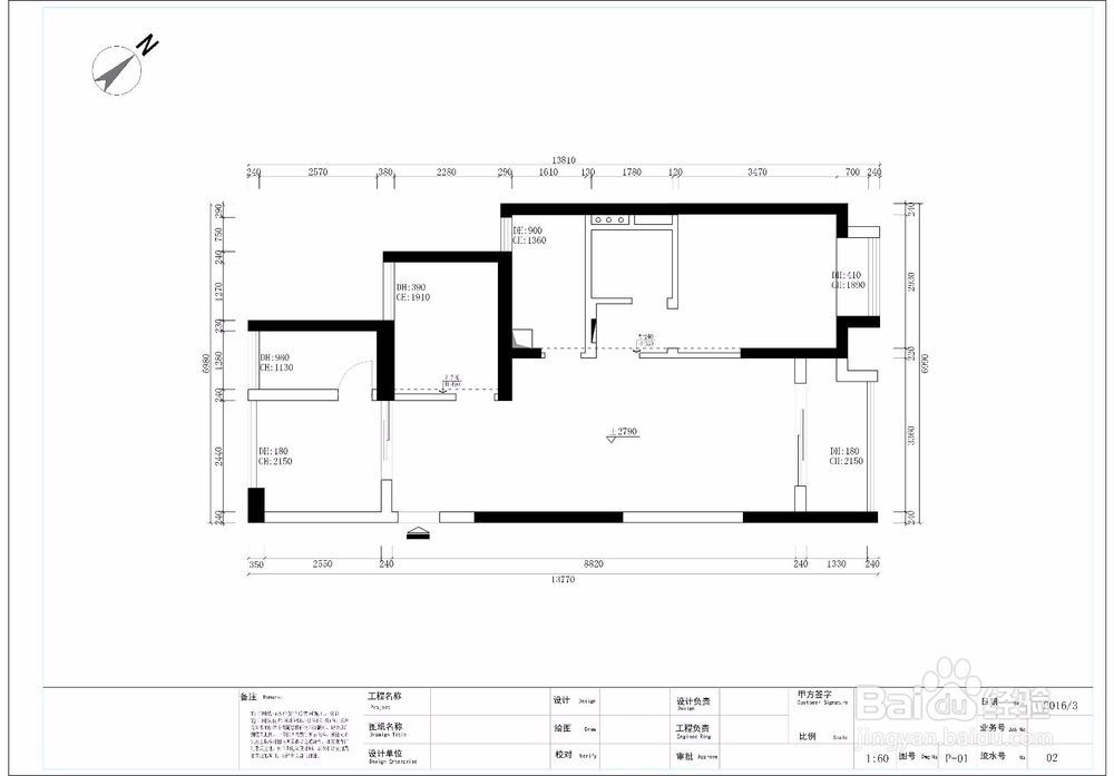
2、制作一张原始结构图,就是跟你房产证上的户型结构图一样,主要是确定户型的承重墙和柱还有窗户。

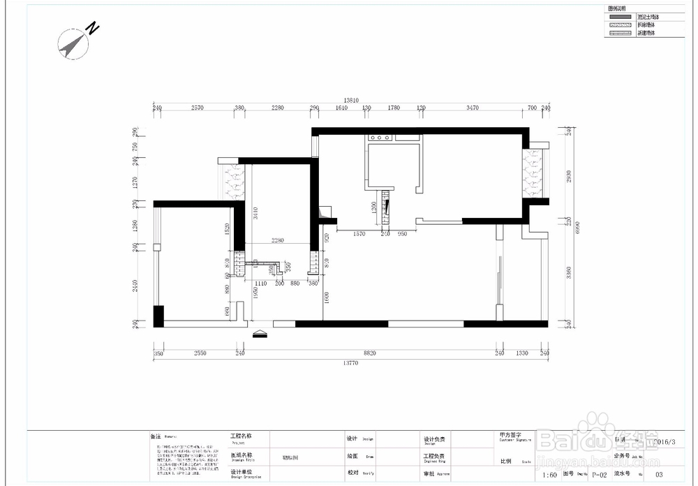
3、制作一张拆除图,物业首先会审核你的拆除,看看你是否破坏承重结构和外观。现在城建局不允许破坏建筑外观和承重结构的。

4、制作一张建墙图,拆除了就会有修补和重砌,物业主要看你有没有乱砌墙,因为楼板的受力是有限制的,太重了会压坏楼板的。

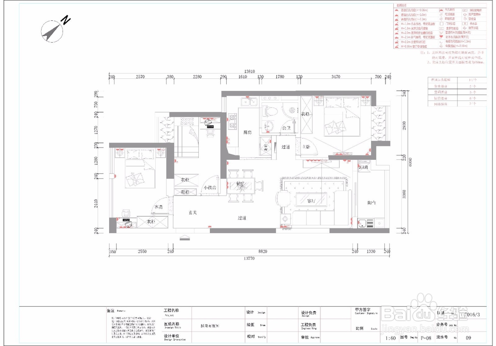
5、制作一张平面布置图,物业会看你的规划图,他每天会去你家检查,看看有没有按图纸施工,他好知道你家的规划是怎么样的,因为建墙图是红砖或轻质砖砌起来的,其他的规划可以用不同的材质做,看看有迨藻悃顼没有太重的和防止你装修中改变,改回用红砖砌墙。

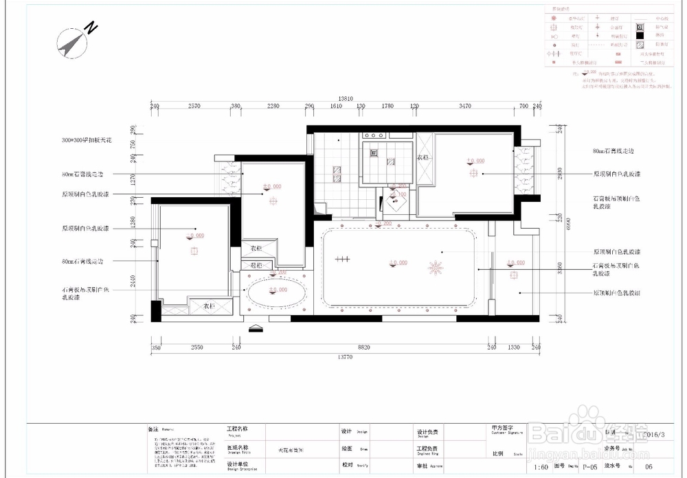
6、制作一张天花图,有地面还不行,还得要有顶上的,因为物业也要审核你的吊顶会不会影响建筑的外观,不能破坏也不能影响,尤其是阳台部分,他是没有窗户的,如果吊顶影响建筑外观的统一性是很容易看出来的。

7、制作一张防水图,因为每家每户都有用水,但是楼板黟迮陶樨又不防水,所以你就要做防水,不能把水渗到楼下去,渗到楼下了你就得要赔偿楼下住户的了,物业检查是确认你家做了防水,保护你楼下的住户, 帛镢宜嗣防水还要做闭水试验,两天保证不漏,要不不能做下一步。

8、制作一张开关插座图,物业看你的用电分布,会不会出问题,不怕一万就怕万一,谁也说不好,物业也是检查一下,好点的会提醒下你,怕你到处装插座装到有水的地方就很危险了。

9、制作一张水路示意图,这是对应你的防水图来的,看你的水都接到哪里了,有水的地方有没有做防水。

10、最后一张是配电图,有的物业要,有的不要,配电室给每个住户的电量都是有限的,如果用电特别大的要向物业申请换电线,给多些电量,有的物业是看你的配电图来的,有没有超电量,有的物业就是直接问你电量够不够,他不管你怎么分配。

11、这就是一个报建图纸的制作流程,地方不同对图纸的要求也不同,你可以向物业先问问要什么图,几张图。物业都会告诉你的,你按照物业的要求来就可以了。如果帮助到亲,给个好评哦,谢谢。